Üsküdar Amerikan Lisesi Kampüsü
- Proje Tarihi: 2025
- Yer: İstanbul - Türkiye
- İşveren: Sağlık ve Eğitim Vakfı
- Proje Ekibi: Tülin Hadi, Cem Ilhan, Almira Su Köker, Ayşegül Ersin, İhsan Samed Özkökeli
- Tipoloji:
- Eğitim
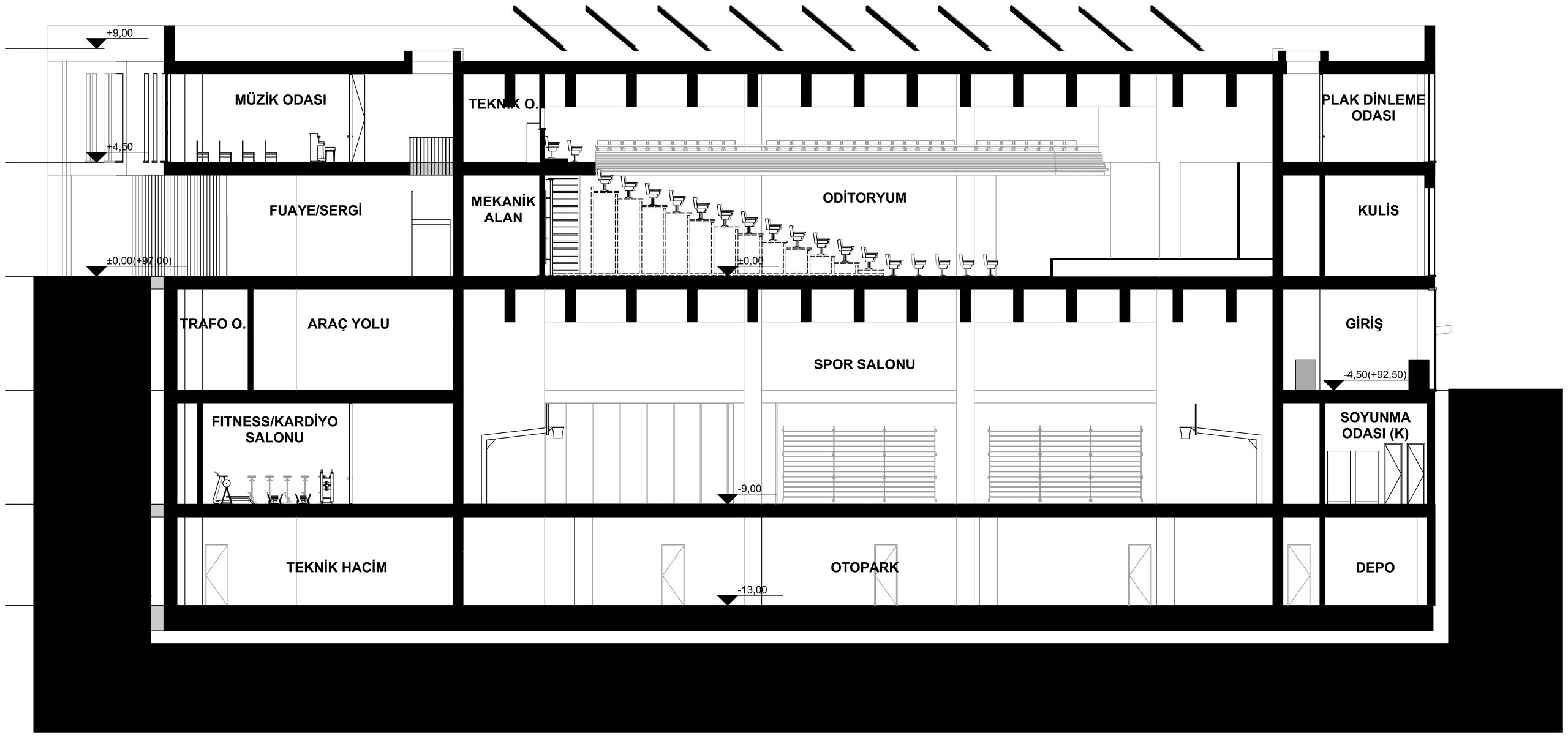
Üsküdar Amerikan Lisesi Kampüsü Masterplan ve Yeni Bina Tasarımlarına yönelik önerilerin sunulması, değerlendirilmesi ardından jüri ile birlikte bir görüşme gerçekleştirilmiştir. Bu görüşmede tasarımda kurum hafızası konusunun ele alınışı ve kampüs genelinde sadece mimari değil peyzaja yönelik çözümlerin de önerilmiş olmasının olumlu bulunduğu bildirilmiştir. Diğer yandan, dış mekanda ortak yaşantılar elde etme olanaklarının araştırılması, iç mekanlarda sirkülasyon alanlarının azaltılması, çeşitli mekanların esneklik, çoklu ve ortak kullanım olanaklarının araştırılması, STEM binasının saçak kotunun azaltılması, Emir Konak ile olan ilişkisinin gözden geçirilmesi istenmiştir. Bu değerlendirmelerin yanı sıra yemekhane, oditoryum ve servis parklanması için ihtiyaçlar yeniden belirlenmiştir.
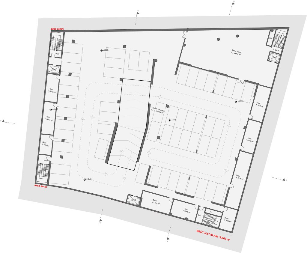
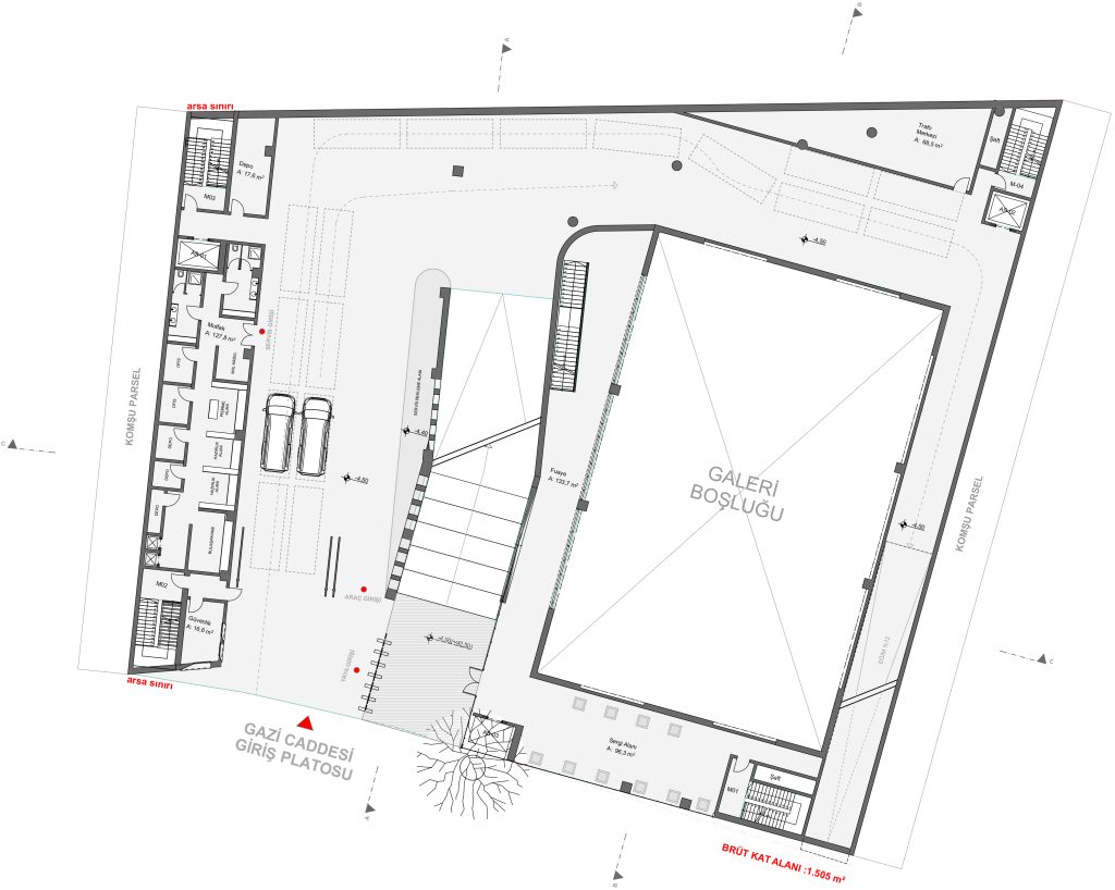
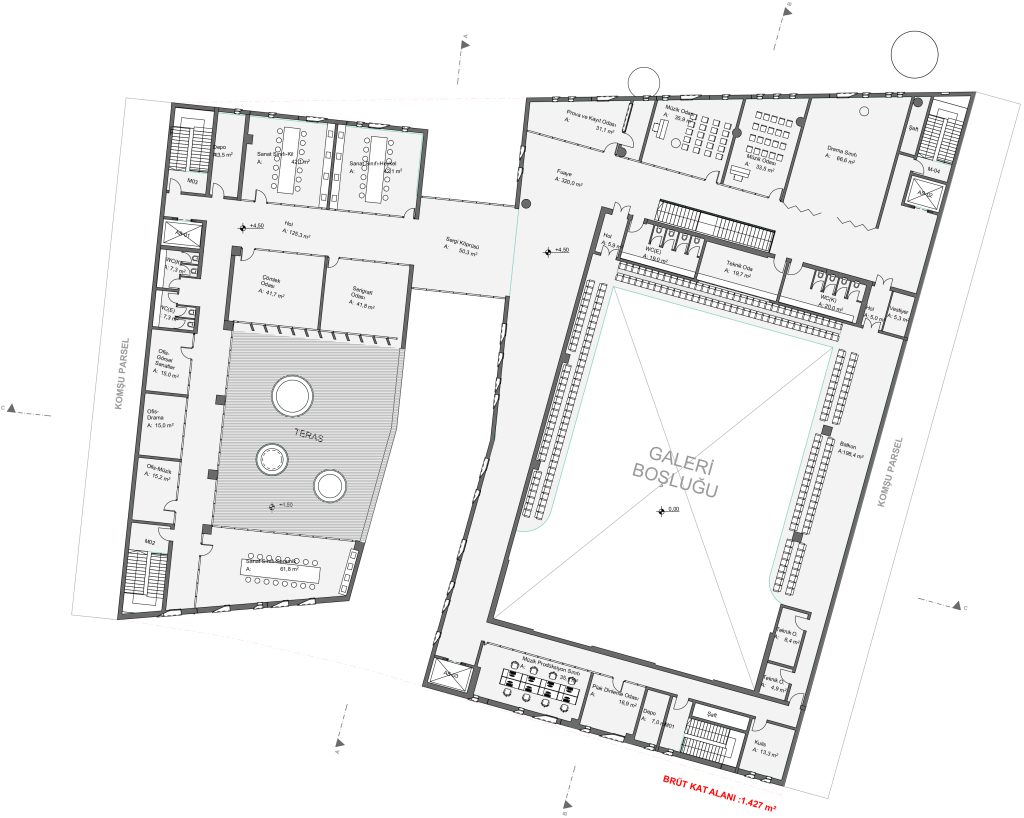
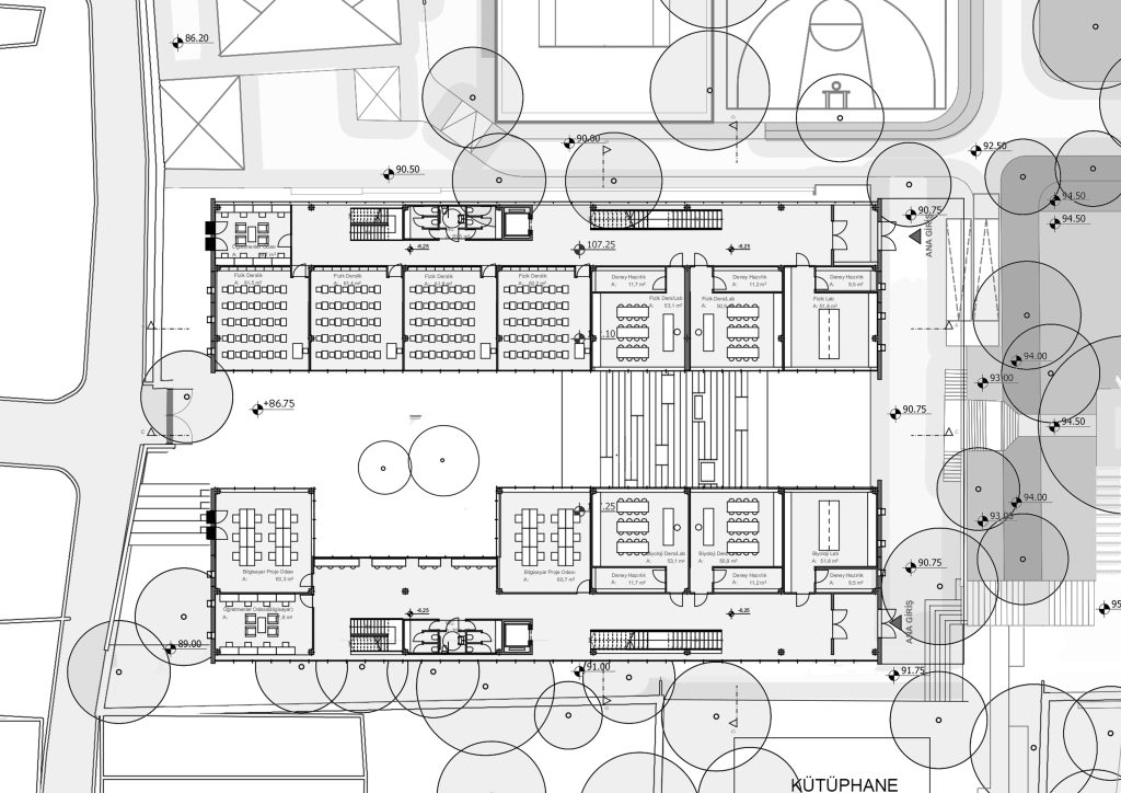
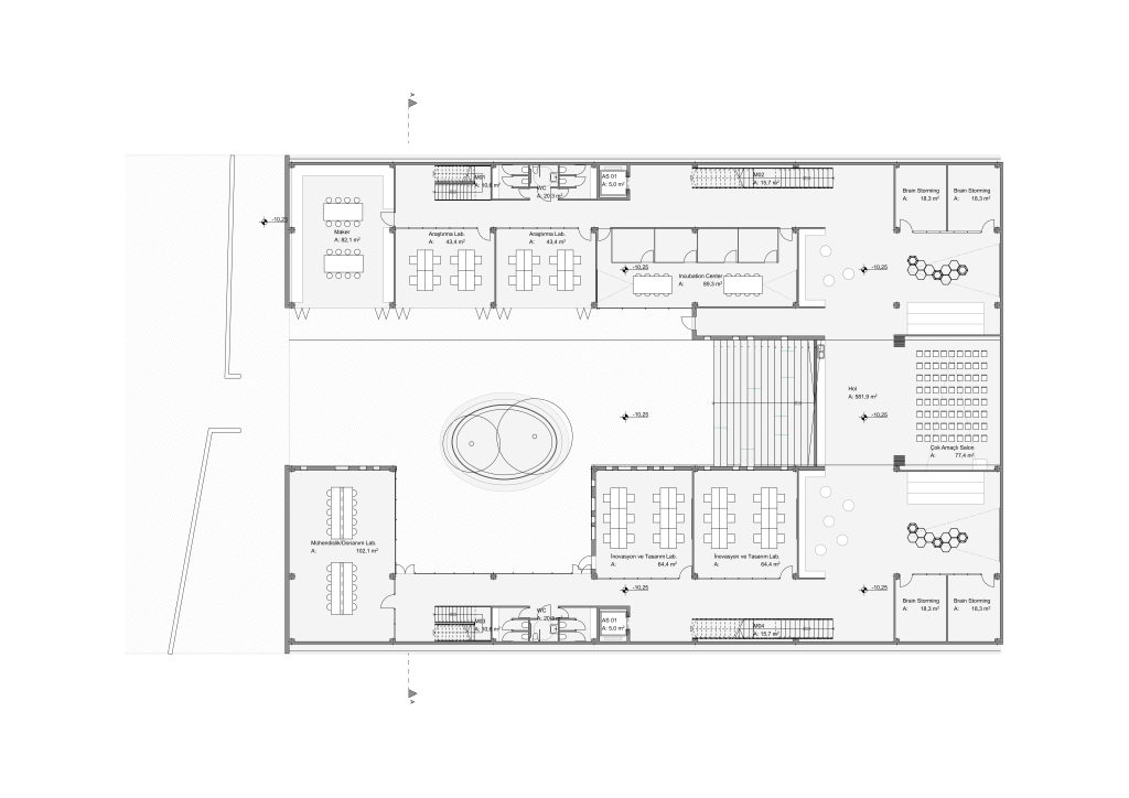
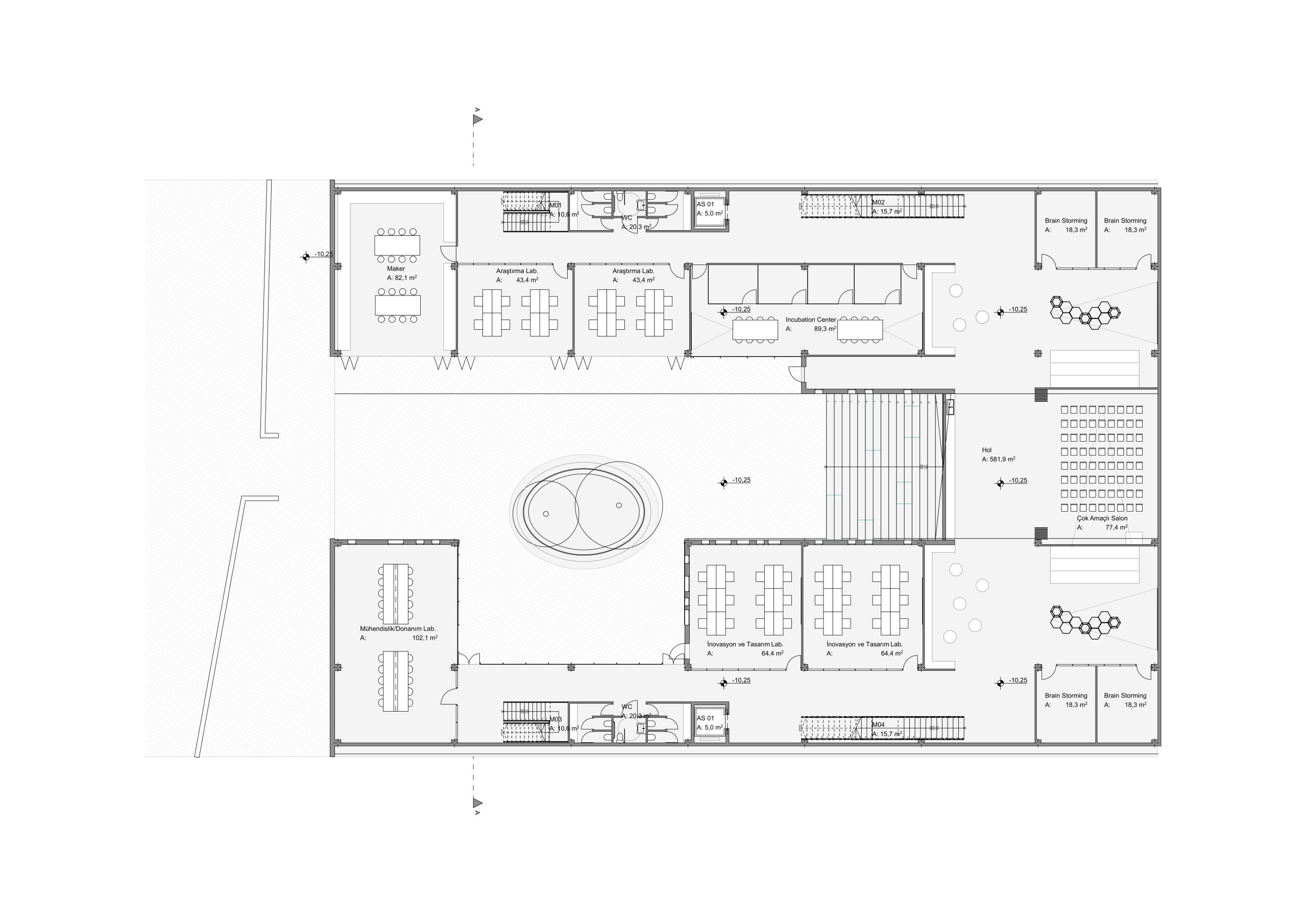
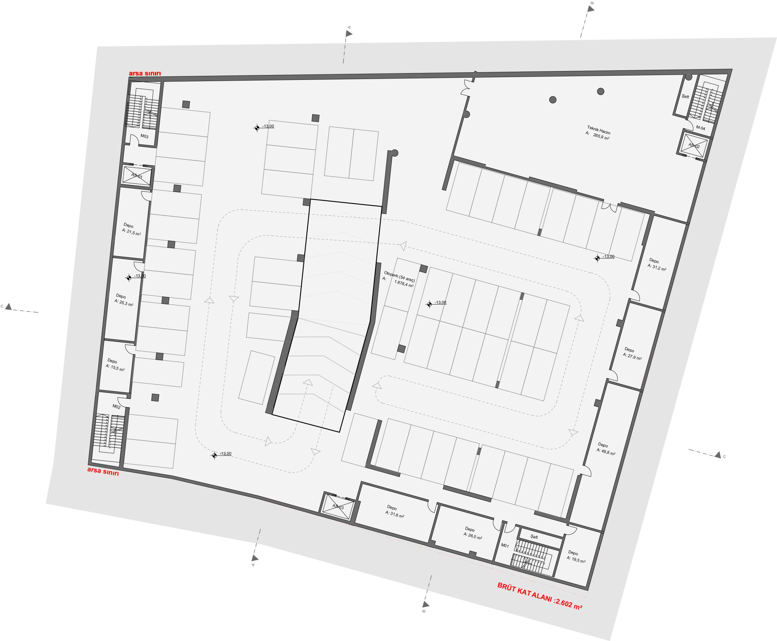
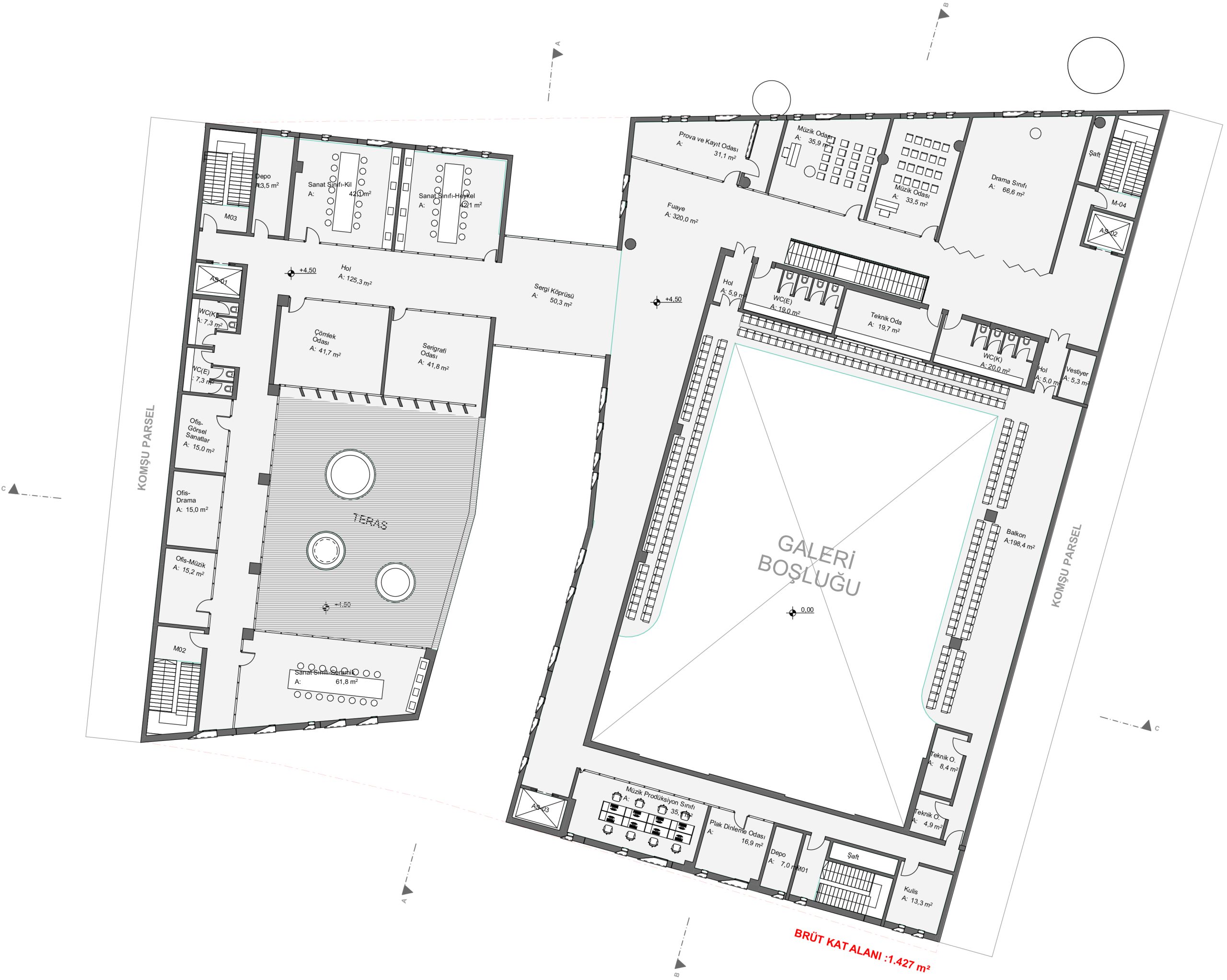
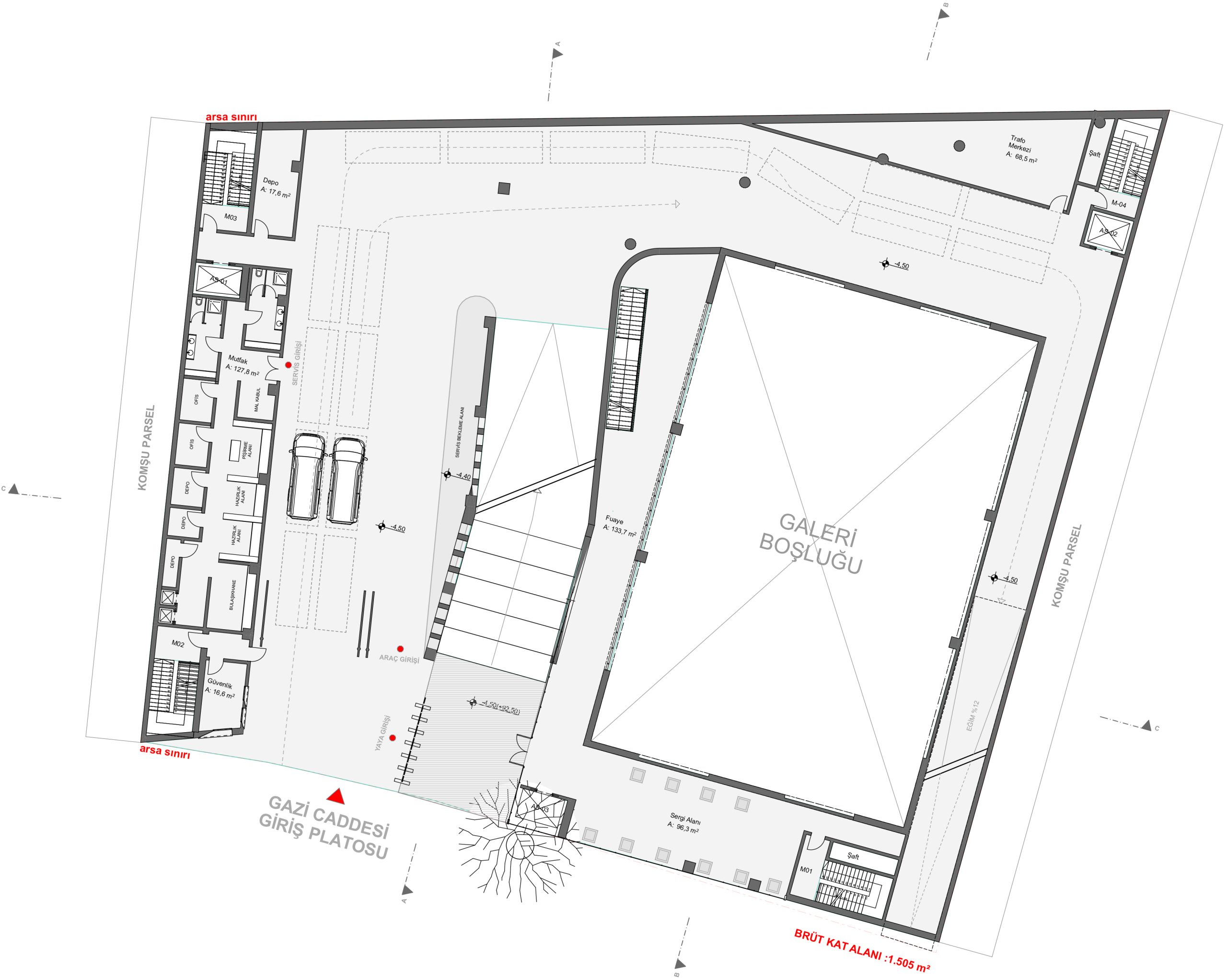
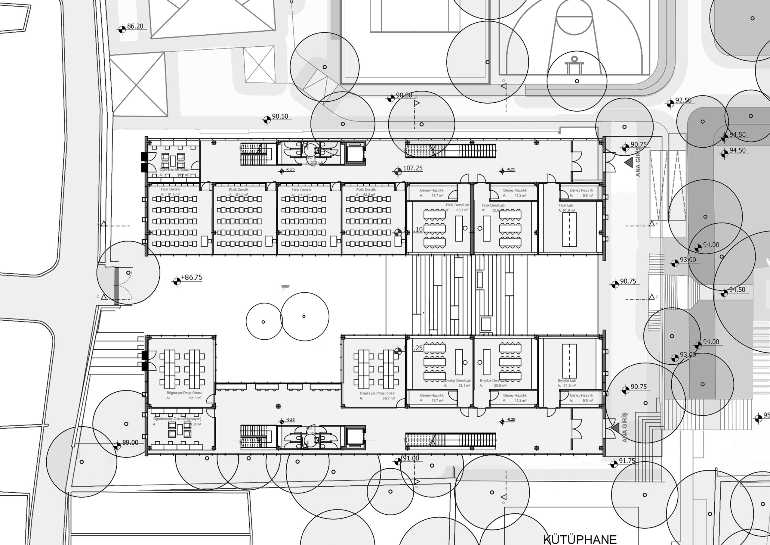
YSSO, STEM binalar ve kampüs geneline dair tasarımlar bu değerlendirme ve yeniden tanımlanan ihtiyaçlar doğrultusunda en baştan ele alınmıştır. Yapıların çözümünde doğrudan dış mekanda farklı kullanımlara da imkan veren ara boşluklar, geçitler oluşturulmuştur. Yeni yapılar monolitik kitleler yerine geçitler veya köprülerle birbirine bağlanan yapılar olarak çözümlenmiştir. Mevcut durumda, Bowker Hall ve Barton Hall arasındaki köprü ve Martin Hall ile Morgan Hall arasındaki köprülerin yeni yapı tasarımlarında da tekrarlanmasıyla bu “bağlantılar” temasının kampüs geneline yayıldığı söylenebilir.

























